Toll Free:
1 (877) EXACTA-9, 1 (877) 392-2829
Structural
Steel
Shop drawings

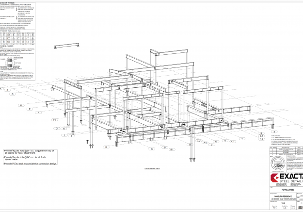
EXACTA specializes in producing highly accurate Structural Steel shop drawings that follow clients' customized standards while maintaining the guidelines set by CISC-ICCA (Canada) and AISC, NISD, OSHA (USA).

REQUEST A CALL BACK
Structural<br>Steel<br>Shop drawings
BY TAKING US ON YOUR TEAM YOU WILL RECEIVE
FOLLOWINGS PRODUCT:

Shop drawings that will include:
 General 3D views of the structure
 Detailed floor plans
 Detailed erection plans
 Elevation views
 All necessary sections
 Connections design stamped by a professional engineer
 Isometric details of complex connections
 Assembly drawings, for elements preassembled in shop
 Fabrication drawings, with each element on a separate page for your shop
 Advanced Bill of Material
 Cut lists, bolt lists and other reports as necessary
 List for all Field Bolts and elements required for installation
 Files in various formats for automated shop machines such as NC, DXF and other

 

 

 

 

 

 

FOLLOWINGS SERVICE:

 Great quality drawings on time and within budget
 Flexible and adjustable design products accustomed to your specific needs
 Open lines of communication with problem-solving environment
 Tracking of any changes that may affect your contract cost
 Client's online cabinet and FTP server with project status and updates
 Constant and full support by our professional team

3D INTERACTIVE MODELS:

 At no cost, we supply interactive 3D model of your Take-Off with Tekla's free viewer. This will allow you to see your project in 3D, make measurements, write comments and use other useful features. 

 

 

 

 

TYPES OF CONSTRUCTION:

 Residential construction: High-rises, Apartment complexes, Condominiums, Townhouses, Custom Homes 
 Commercial development: Hotels, Restaurants, Sports facilities, Retail stores, Shopping malls, Shops, Office and Service buildings
 Industrial installations: Plants, Warehouses, Manufacturing & Telecom/Data Hosting Centers, Flex and Showroom Buildings
 Bridges and special structures

COORDINATION, FORMATS AND FILE EXCHANGE:

 Drawings produced in Imperial or Metric formats
 Drawing files provided in PDF, DWG
 Production line equipment files: CNC, DXF 
 Reports and Bill of Material: DOC, EXCEL, PDF 
 Large variety of other formats for Material Management software, shop machinery, and construction 
 FTP site is available for convenient and secure transfer of large files 

COMPLETED PROJECTS
Load more...
CONTACT US
A member of our team will get in touch with you within one buisness day
Scope of Work
upload files...